Mo. 7–10 UhrMi. 9–11 & 14–18 UhrDo. 13–15 UhrFr. 9–11 Uhr

Erstbezug 02/2026! Große 3-Raum-Wohnung mit Terrasse und Gartennutzung

Staudaer Str 3, Priestewitz

3 Räume

84,54 m²

Beschreibung

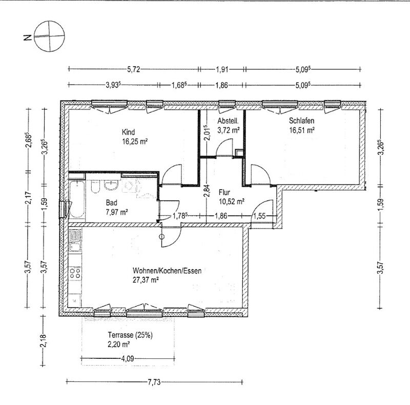
Diese attraktive 3-Raum-Wohnung mit einer Wohnfläche von 84,54 m² überzeugt durch ihre hochwertige Ausstattung, moderne Raumaufteilung und eine helle, freundliche Atmosphäre.

Der großzügige Wohn- und Essbereich mit offenem Küchenkonzept bietet viel Platz und schafft ein einladendes Wohnambiente. Große Fensterflächen sorgen für lichtdurchflutete Räume.

Ein Abstellraum sorgt für zusätzlichen Stauraum.

Das moderne Tageslichtbad ist mit einer ebenerdigen Dusche und einer Badewanne ausgestattet. Die gesamte Wohnung wird über eine Fußbodenheizung beheizt.

Ein besonderes Highlight ist die Terrasse mit direktem Zugang zum Garten, ideal zum Entspannen und Genießen im Freien.

Zu jeder Wohnung gehört ein großzügiges Kellerabteil.

Die Schlüsselübergabe wird voraussichtlich im Februar 2026 stattfinden. Die monatliche Miete für das Carport beträgt 30,00€.

 

Die Wohnung befindet sich direkt am Bahnhof Priestewitz – ideal für Pendler! Von hier aus bestehen hervorragende Zugverbindungen nach Meißen, Riesa und Dresden. Einkaufsmöglichkeiten, Ärzte und weitere Einrichtungen des täglichen Bedarfs sind ebenfalls schnell erreichbar. Trotz der zentralen Lage genießen Sie ein ruhiges Wohnumfeld.

 

Die Wohnung befindet sich im Eigentum der Wohnungsgenossenschaft.

Es sind Genossenschaftanteile in Höhe von 1280,00 € zzgl. 30,00 € Eintrittsgeld zu zahlen. Die Mindestmietdauer beträgt 4 Jahre.

Adresse

Staudaer Str 3
01558 Priestewitz

Ausstattung

  • Abstellraum
  • Fußbodenheizung
  • Gartenanteil
  • Kellerabteil
  • Kunststofffenster
  • Tageslichtbad mit Dusche
  • Tageslichtbad mit Wanne
  • Terrasse
  • Winterdienst/Grünlandpflege durch Dienstleister

Miete

Kaltmiete 890,00 €
Nebenkosten 125,00 €
Heizkosten 85,00 €
Warmmiete 1.100,00 €

Eigenschaften

Etage Erdgeschoss
Räume 3
Wohnfläche 84,54 m²
Baujahr 2026

Grundriss

Hier befindet sich eigentlich eine Karte mit Daten von der Openstreetmap Foundation.

Um diese Inhalte anzuzeigen, werden bestimmte Browserdaten (Datum und Uhrzeit des Besuchs auf der betreffenden Webseite, Internetadresse oder URL der aufgerufenen Webseite, IP-Adresse) an Openstreetmap Foundation, St John’s Innovation Centre, Cowley Road, Cambridge, CB4 0WS, United Kingdom gesendet, sowie möglicherweise Drittanbietercookies gesetzt.

Nähere Informationen finden Sie in der entsprechenden Datenschutzerklärung von Openstreetmap Foundation.

Bitte bestätigen Sie, dass Sie damit einverstanden sind. Sie können die Einwilligung jederzeit mit dem entsprechenden Link in der Fußzeile wiederrufen.

Energieausweis

Gebäudetyp Wohngebäude
Wesentliche Energieträger Erdwärme
Energieverbrauchskennwert 0,00 kWh/(m²*a)
Energieeffizienzklasse A+
A+
A
B
C
D
E
F
G
H
0
30
50
75
100
130
160
200
250

Jetzt anfragen

Jetzt anfragen

Nach oben